Apartament - Për Shitje - Palasë, Bregdeti Jon(ID: 530181004-823)
Apartament - Për Shitje - Palasë, Bregdeti Jon(ID: 530181004-823)
Apartament - Për Shitje - Palasë, Bregdeti Jon(ID: 530181004-823)
Cmimi sipas kerkeses.
Për shitje 3 orë më parë

Apartament - Për Shitje - Palasë, Bregdeti Jon(ID: 530181004-823)

Green Coast, Vlore

  • DSH-204106
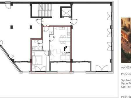
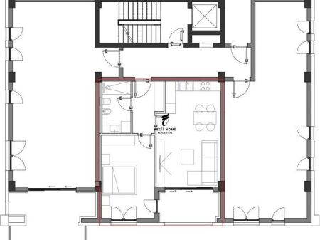
  • 102 m2
  • 1 Dhoma gjumi
  • 1 Tualet
  • 1 Kuzhine
  • 1 Shikime
Përshkrimi

Apartament ne shitje 1+1+parkim ne Green Coast!
Shitet Apartament 1+1+ post parkimi me Oborr ne Green Coast Residence 1. Apartamenti eshte pjese e Residences Green Coast 1, ka nje siperfaqe totale prej 182.6 m2 nga te cilat siperfaqe e apartamentit neto eshte 75 m2 edhe siperfaqe parcele prej 102m2, Apartamenti ndodhet ne katin perdhe, ka nje planimetri te rregull, pamje fantastike, i gjithi i ribere me rifinitura ekstra luksoze . Disponon te perfshire edhe nje post parkimi. Apartamenti disponon edhe nje plan projekt per ndertimin e pishines. Me hipoteke! Per nje vizite ne prone na kontaktoni!

Detaje të tjera

  • Parkim i përfshirë
  • E mobiluar
  • Viti i ndërtimit: 2022
  • Ballkon

Vendndodhja në hartë

Kontaktoni

Llogaritësi i Kredisë
%
%
Vite
Muaji Payment Principali Interesi Totali i interesit Gjendja e mbetur

Na vjen keq, është shumë vonë për një telefonatë. Ju lutemi na kontaktoni përmes WhatsApp ose telefononi nesër nga ora 07:00 - 21:00.