SHITET APARTAMENT 1+1 PALASE 198.500 EURO  FH-69730
198,500 € (2,719 € / m²)
Për shitje 2 orë më parë

SHITET APARTAMENT 1+1 PALASE 198.500 EURO FH-69730

Palasë, Vlore

  • DSH-204479
  • 73 m2
  • 1 Dhoma gjumi
  • 1 Tualet
  • 1 Kuzhine
  • Kati 1
  • 2 Shikime

Në Ndërtim

Përshkrimi

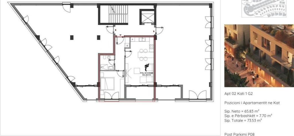
SHITET APARTAMENT
•1+1
•SIPERFAQE TOTALE 73.53 M2
•SIPERFAQE PERBASHKET 7.70 M2
•SIPERFAQE NETO 65.83 M2
•KATI 1
•DHOME GJUMI
•SALLON
•TUALET
•PALLAT I RI
•NE NDERTIM
•FAZE FILLESTARE
•SUN PALASE RESIDENCE
•PALASE
•CMIMI 198.500 EURO
KONTAKTONI
FELIZ HOME MSH441
FH-69730

Detaje të tjera

Vendndodhja në hartë

Kontaktoni

Llogaritësi i Kredisë
%
%
Vite
Muaji Payment Principali Interesi Totali i interesit Gjendja e mbetur

Na vjen keq, është shumë vonë për një telefonatë. Ju lutemi na kontaktoni përmes WhatsApp ose telefononi nesër nga ora 09:00 - 18:00.