Shitet apartament 2+1+2 tualete – Meis Garden, Fusha e Aviacionit
Shitet apartament 2+1+2 tualete – Meis Garden, Fusha e Aviacionit
Shitet apartament 2+1+2 tualete – Meis Garden, Fusha e Aviacionit
171,100 € (1,450 € / m²)
Për shitje 2 orë më parë

Shitet apartament 2+1+2 tualete – Meis Garden, Fusha e Aviacionit

Playground Ish Fusha Aviaciomit, Tirane

  • DSH-204729
  • 118 m2
  • 2 Dhoma gjumi
  • 2 Tualete
  • 1 Kuzhine
  • Kati 3
  • 2 Shikime
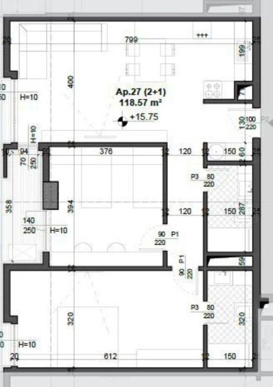
Përshkrimi

📐 Sipërfaqe totale: 118.57 m²
📐 Sipërfaqe neto: 99.88 m²
🏢 Kati: 5
☀️ Orientim: Jug
Organizimi:
Ambient ndenje + kuzhinë
2 dhoma gjumi
2 tualete
Ballkon
✔️ Planimetri e rregullt
✔️ Ndërtim i ri
✔️ Faza aktuale: karabina (ndërtimi në katin 2)
💰 Çmimi: 1450€/m²

Detaje të tjera

  • Viti i ndërtimit: 2026
  • 14 Kate gjithsej
  • I pabanuar më parë
  • Ballkon
  • Ka ashensor
  • 1.8km nga qendra

Transporti Publik

Stacione dhe linja të transportit publik pranë pronës

Më afër

Stacioni - Fusha Aviacionit

10C
Rrethrrotullimi Shkozë – Ish-fusha e aviacionit
49m larg
1 min në këmbë

Distancat janë përllogaritur në vijë ajrore. Distanca e vërtetë në ecje mund të jetë ndryshe dhe pozicioni i pronës mund të ketë devijime të vogla

Vendndodhja në hartë

Arsimi & Shkollat përreth

Shkolla 9-vjeçare Gustav Majer
9-vjeçare
432m
Distancat janë përllogaritur në vijë ajrore. Distanca e vërtetë në ecje mund të jetë ndryshe dhe pozicioni i pronës mund të ketë devijime të vogla

Kontaktoni

Llogaritësi i Kredisë
%
%
Vite
Muaji Payment Principali Interesi Totali i interesit Gjendja e mbetur

Na vjen keq, është shumë vonë për një telefonatë. Ju lutemi na kontaktoni përmes WhatsApp ose telefononi nesër nga ora 07:00 - 21:00.