Apartament 1+1 per shitje ne Paskuqan!
Apartament 1+1 per shitje ne Paskuqan!
Apartament 1+1 per shitje ne Paskuqan!
98,000 € (1,240 € / m²)
Për shitje 1 orë më parë

Apartament 1+1 per shitje ne Paskuqan!

Shkolla 9-vjeçare "Lidhja e Prizrenit", Paskuqan, Kamez

  • DSH-210097
  • 79 m2
  • 1 Dhoma gjumi
  • 1 Tualet
  • 1 Kuzhine
  • Kati 3

Në Ndërtim

Përshkrimi

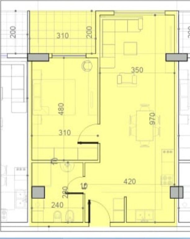
Apartament 1+1 për shitje në Paskuqan

Shitet apartament 1+1 në zonën e Paskuqanit, pranë Unazës së Madhe, në një rezidencë të re dhe moderne, aktualisht në fazë ndërtimore.

Apartamenti organizohet në:

Sallon + kuzhinë
1 dhomë gjumi
1 tualet
Ballkon

Karakteristika:

Planimetri perfekte dhe funksionale
Ndriçim natyral gjatë gjithë ditës
Ndërtim cilësor sipas standardeve bashkëkohore
Mundësi ideale për banim ose investim

Vendndodhja ofron akses të shpejtë me Unazën e Madhe dhe zonat kryesore të Tiranës, si dhe qetësi dhe zhvillim të shpejtë urban.

Për më shumë informacion ose vizitë në pronë, kontaktoni.

Detaje të tjera

  • 8 Kate gjithsej
  • Ballkon
  • Ka ashensor
  • 0m nga qendra

Vendndodhja në hartë

Kontaktoni

Llogaritësi i Kredisë
%
%
Vite
Muaji Payment Principali Interesi Totali i interesit Gjendja e mbetur

Na vjen keq, është shumë vonë për një telefonatë. Ju lutemi na kontaktoni përmes WhatsApp ose telefononi nesër nga ora 07:00 - 21:00.