SHITET APARTAMENT 2+1 – Paion Residence, Paskuqan
SHITET APARTAMENT 2+1 – Paion Residence, Paskuqan
SHITET APARTAMENT 2+1 – Paion Residence, Paskuqan
SHITET APARTAMENT 2+1 – Paion Residence, Paskuqan
SHITET APARTAMENT 2+1 – Paion Residence, Paskuqan
114,000 € (1,140 € / m²)
Për shitje 2 orë më parë

SHITET APARTAMENT 2+1 – Paion Residence, Paskuqan

Paskuqan, Kamez

  • DSH-210388
  • 100 m2
  • 2 Dhoma gjumi
  • 2 Tualete
  • 1 Kuzhine
  • Kati 8
  • 1 Shikime

Në Ndërtim

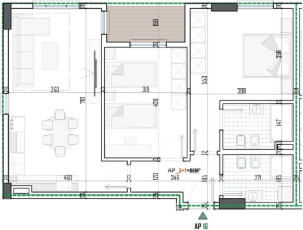
Përshkrimi

📍 Kompleks modern në një zonë të qetë dhe në zhvillim të shpejtë
✅ Të dhënat kryesore:
▪️ Kati: 2
▪️ Sipërfaqe neto: 86 m²
▪️ Sipërfaqe e përbashkët: 14.2 m²
▪️ Sipërfaqe totale: 100.2 m²
✅ Organizimi:
▪️ Sallon + kuzhinë open space
▪️ 2 dhoma gjumi
▪️ 2 tualete
▪️ Ballkon
✅ Avantazhe:
▪️ Ndriçim natyral gjatë gjithë ditës
▪️ Planimetri funksionale dhe moderne
▪️ Ndërtim cilësor
▪️ Ideal për banim familjar ose investim
Çmimi: 114,000 €

Detaje të tjera

  • 8 Kate gjithsej
  • 0m nga qendra

Vendndodhja në hartë

Arsimi & Shkollat përreth

Gjimnazi Isa Boletini
Gjimnaz
120m
Kopshti Nr. 15
Kopsht
141m
Çerdhja Nr. 4, Hapi i pare
Çerdhe
222m
Distancat janë përllogaritur në vijë ajrore. Distanca e vërtetë në ecje mund të jetë ndryshe dhe pozicioni i pronës mund të ketë devijime të vogla

Kontaktoni

Llogaritësi i Kredisë
%
%
Vite
Muaji Payment Principali Interesi Totali i interesit Gjendja e mbetur

Na vjen keq, është shumë vonë për një telefonatë. Ju lutemi na kontaktoni përmes WhatsApp ose telefononi nesër nga ora 07:00 - 21:00.