🍪 Cookies dhe privatësia
duashpi.al përdor cookies për të përmirësuar eksperiencën, përmbajtjen e personalizuar dhe analizimin e trafikut. Duke klikuar "Prano", ju jepni lejen tuaj për përdorimin e cookies.
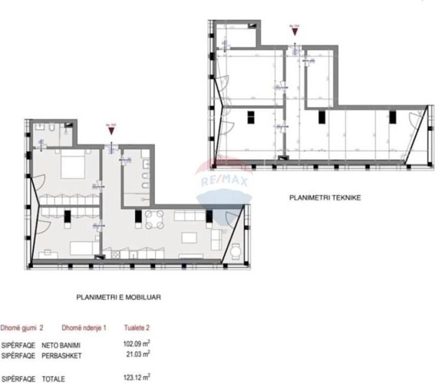
Apartament 2+1+2 Në qëndër të Tiranës, zona e Pazarit të Ri vetëm 7 minuta nga Sheshi Skënderbej
📐123.12 m² bruto | 102.09 m² neto
Ky apartament modern ofron një përzierje perfekte midis qetësisë, sigurisë dhe komoditetit, pa u larguar nga zemra e qytetit. Ideale për familjet që kërkojnë një hapësirë funksionale, të ndriçuar natyralisht dhe të projektuar me standarde të larta bashkëkohore.
Karakteristikat kryesore:
Arkitekturë moderne dhe ndërtim cilësor, i konceptuar nga studio vendase dhe ndërkombëtare.
Planimetri funksionale, me organizim të menduar deri në detaj.
Ndriçim i bollshëm natyral, falë orientimit të favorshëm dhe dritareve të mëdha.
Lokacion Premium: vetëm pak minuta nga qendra, në një nga zonat më të kërkuara të Tiranës Pazari i Ri, e njohur për gjallërinë, shërbimet dhe traditën.
Pse ky apartament është një zgjedhje e zgjuar?
Investim i sigurt: zona ofron rritje të vazhdueshme të vlerës në tregun imobiliar.
Komoditet & stil: hapësira të rehatshme për jetesë cilësore.
Trashëgimi për të ardhmen: një pronë që ruan dhe rrit vlerën, duke i ofruar familjes stabilitet afatgjatë.
Disponojmë opsione nga kati i parë deri në katin e 9-të me të njëjtën planimetri.
Afati i përfundimit të projektit: 2029
Ky nuk është thjesht një apartamentështë një mundësi për të investuar në të ardhmen tuaj, në një nga zonat më elitare dhe të zhvilluara të Tiranës.
A ka diçka të gabuar?
Çmim i rremë, mashtrim ose foto të rreme — na sinjalizoni.
Pagesa Mujore:
| Muaji | Payment | Principali | Interesi | Totali i interesit | Gjendja e mbetur |
|---|
Zgjidh arsyen që përshtatet më mirë. Shto çdo detaj që na ndihmon ta shqyrtojmë.
Mund të të kontaktojmë nëse na duhet më shumë informacion për raportimin tënd.
Na vjen keq, është shumë vonë për një telefonatë. Ju lutemi na kontaktoni përmes WhatsApp ose telefononi nesër nga ora 06:00 - 23:55.