253,656 €
Per shitje 1 orë më parë

OKAZION! Apartament 1+1 me oborr për Shitje tek Square Village, Dhërmi!

Square Village, Dhermi, Vlore

  • 86 m2
  • 1 Kuzhine
Pershkrimi

✦ DETAJET E PRONËS:

─────────────
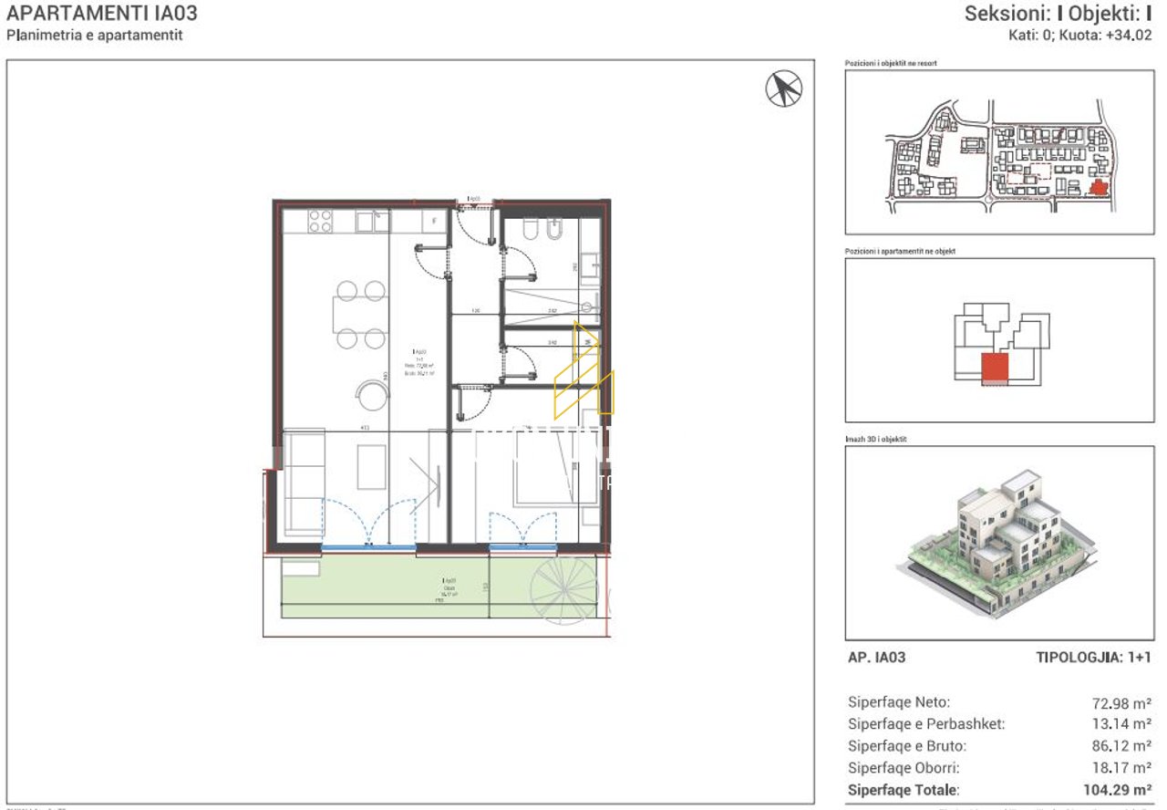
• Tipologji: 1+1
• Sipërfaqe neto: 72.98 m²
• Sipërfaqe bruto: 86.12 m²
• Oborr: 18.17 m²
• Rezidenca: Village Square, Dhërmi

✦ ORGANIZIMI I BRENDSHËM:

──────────────────
• 1 sallon ndenjeje me kuzhinë të përfshirë
• 1 dhomë gjumi
• 1 tualet
• 1 depo me akses nga korridori shpërndarës
• Oborr privat

✦ KARAKTERISTIKAT:

────────────
I përshtatshëm për:
• Banim personal ose pushime relaksuese në bregdet
• Investim me potencial të lartë për qira sezonale dhe afatshkurtër

• Ndodhet në ndërtim
• Kompleks rezidencial me arkitekturë mesdhetare dhe ambiente të kuruara
• Cilësi ndërtimi të lartë, me standarde bashkëkohore

✦ ZONA:

────
• Village Square, zemra e një prej resorteve më tërheqëse në Dhërmi
• Akses i shpejtë në:
  – Plazhet e kristalta të Dhërmiut
  – Restorante, bare, dhe shërbime turistike
  – Ambient i qetë, me gjelbërim dhe atmosferë fshati bregdetar

✦ ÇMIMI:

────
• Totali: 253,656 €

Kontaktoni

Llogaritësi i kredisë
%
%
Vite
Muaji Payment Principali Interesi Totali i interesit Gjendja e mbetur

Na vjen keq, është shumë vonë për një telefonatë. Ju lutemi na kontaktoni përmes WhatsApp ose telefononi nesër nga ora 09:00 - 19:00.

office-address